ul. 11 Listopada 23/3

Adres
ul. 11 Listopada 23/3
Opis

Sprzedaż lokalu nastąpi wraz z udziałem w częściach wspólnych budynku i urządzeń oraz w prawie własności gruntu w udziale 1780/10000 części w działce 849 o pow. 572 m2, obręb Biała Miasto, obj. Kw BB1B/00121340/6.

Sprzedaż zwolniona jest z podatku VAT na podstawie art. 43 ust.1 pkt 10 ustawy o podatku od towarów i usług.

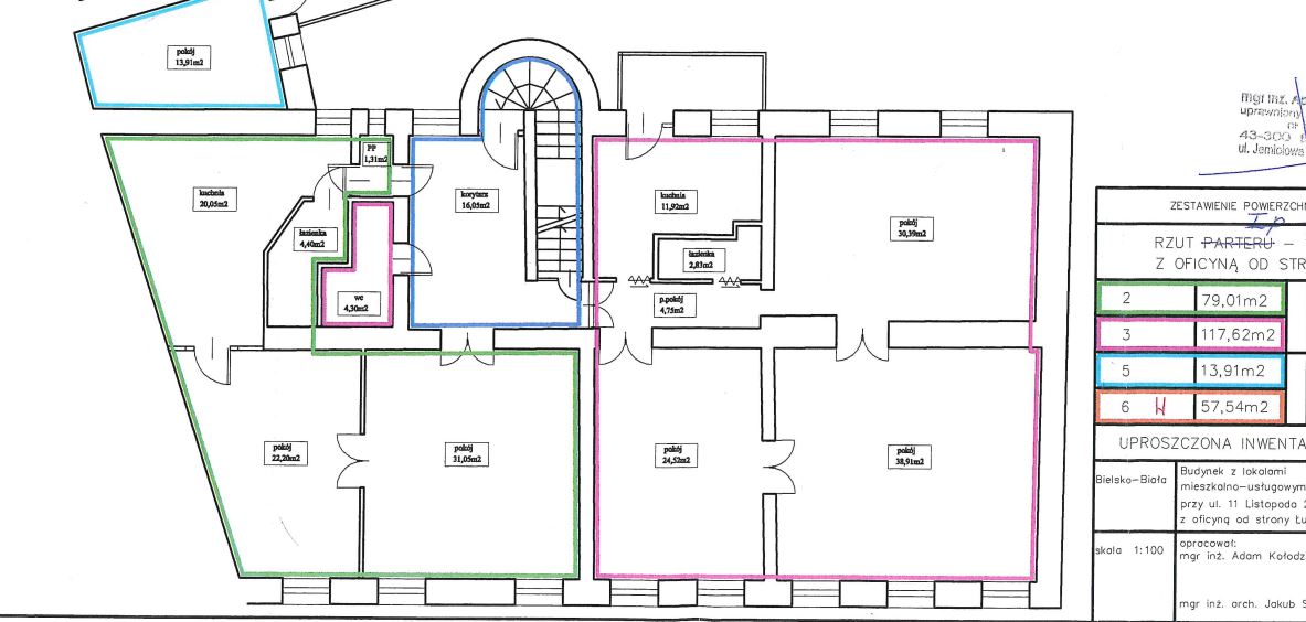
Powierzchnia użytkowa lokalu wynosi 117,62 m2. Do lokalu przynależy piwnica o pow. 4,20 m2.

Lokal mieszkalny położony jest na pierwszym piętrze budynku i składa się z trzech pokoi, kuchni, przedpokoju, łazienki i wc. Lokal stanowi pustostan, jest wolny od obciążeń i nie jest przedmiotem zobowiązań.

Budynek wybudowany początkiem XIX wieku, gruntownie przebudowany w XX wieku, posiada cechy obiektu zabytkowego, wpisany jest do gminnej ewidencji zabytków i figuruje w Studium historyczno-urbanistycznym Białej.

Nieruchomość położona jest na terenie zabytkowego układu urbanistycznego Białej, wpisanego do rejestru  zabytków pod poz. A-479/87 na podstawie decyzji wojewódzkiego konserwatora zabytków, w strefie ścisłej ochrony konserwatorskiej „A”, podlega ochronie konserwatorskiej na podstawie przepisów ustawy z dnia 23 lipca 2003 r. o ochronie zabytków i opiece nad zabytkami. Remont lokalu należy przeprowadzić w uzgodnieniu z konserwatorem zabytków. Nieruchomość nie jest wpisana indywidualnie do rejestru zabytków.

Nieruchomość położona jest w terenie, dla którego obowiązuje miejscowy plan zagospodarowania przestrzennego – przyjęty uchwałą Nr L/1182/2009 Rady Miejskiej w Bielsku-Białej z dnia 22 grudnia 2009 r. dla obszaru obejmującego teren Śródmieścia Białej, położony pomiędzy ulicami: Towarzystwa Szkoły Ludowej, Piłsudskiego, Jagiełły, Lwowską, ks. Stojałowskiego (z Placem Ratuszowym) i rzeką Białą jako zachodnią granicą planu. Zgodnie z ww. planem nieruchomość położona jest w obszarze jednostki: "125_UMW-04” – podstawowe przeznaczenie – zabudowa usługowo-mieszkaniowa śródmiejska, w tym: usługi centrotwórcze, usługi podstawowe, zabudowa mieszkaniowa wielorodzinna, zabudowa usługowo-mieszkaniowa.

Zgodnie z ww. planem zapisy dot. ochrony dziedzictwa kulturowego i zabytków dla wnioskowanego budynku są następujące:  utrzymanie bryły, wysokości i kształtu dachu budynku wraz z detalem elewacji (opaski okienne z kluczami, płyciny, półokrągły ryzalit od podwórza), zachowanie wielkości otworów okiennych z pierwotnym podziałem kwater stolarki okiennej, utrzymanie sklepień żeglastych na gurtach w sieni przejazdowej, koszowych akard bramowych. Zachowanie wystroju wnętrza – w budynku frontowym: (stolarka wahadłowych drzwi w sieni z  przeszkleniami i nadświetlem, stolarka drzwi do mieszkań z nadświetlami, kuta balustrada schodów z drewnianą poręczą na wspornikach, stolarka drzwi na podwórze z przeszkleniami i nadświetlem); w oficynie: stolarka drzwi klatki schodowej i drzwi na ganek z witrażowymi przeszkleniami i dekoracyjnym układem kwater nadświetla, drewniana balustrada i poręcz klatki schodowej z podwórza. Zakaz stosowania tynków kropionych, utrzymanie tynków gładkich, ujednolicenie kolorystyki elewacji dostosowanie witryn i szyldów lokali usługowych i handlowych do charakteru elewacji budynku (ewentualna rekonstrukcja witryn w oparciu o ikonografię). Docelowo – rekonstrukcja wystroju architektonicznego parteru z przywróceniem detalu (w oparciu o ikonografię).

Dla części budynku (lokalu) zostało sporządzone świadectwo charakterystyki energetycznej.

Przetarg zostanie ogłoszony po zmianie udziałów w częściach wspólnych budynku i urządzeń oraz w prawie własności gruntu. Operat szacunkowy będzie wymagał aktualizacji.

 

Kategoria
Mieszkania
Lokalizacja

Nieruchomość

Powierzchnia działki
572.00 m²
Galeria zdjęć
Plan zagospodarowania
Rzeczy dodatkowe
piwnica
Rodzaj nieruchomości
lokal mieszkalny
Własność
Gmina Bielsko-Biała
Forma przetargu
I przetarg pisemny nieograniczony
Cena
798573.00
Numer działki
849
Udział w częściach wspólnych
1780/10000
Obręb
Biała Miasto
KW
BB1B/00121340/6