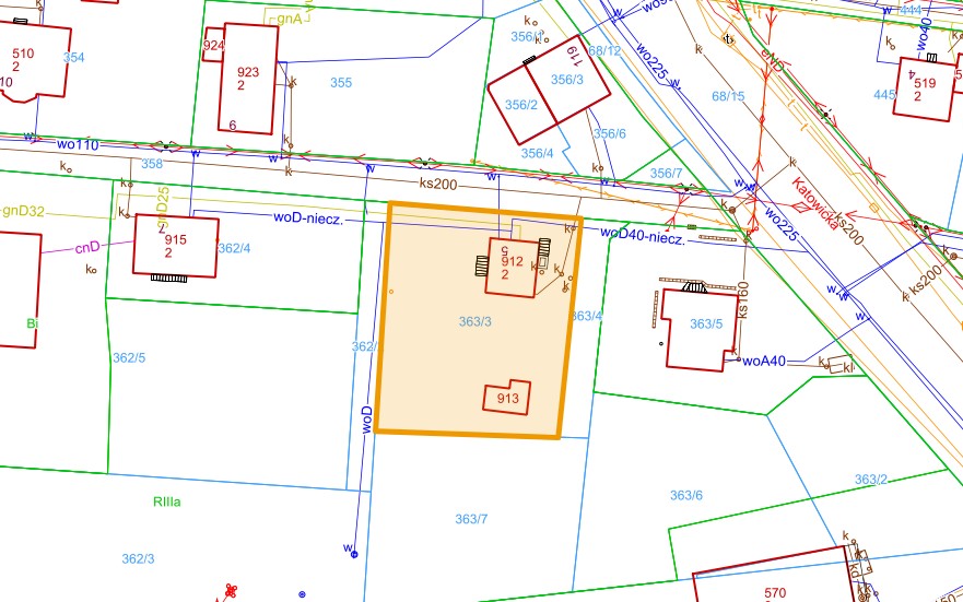
Działka 363/3 zabudowana jest budynkiem mieszkalnym wolnostojącym o pow. użytkowej 104,32 m2 oraz dwoma budynkami gospodarczymi.
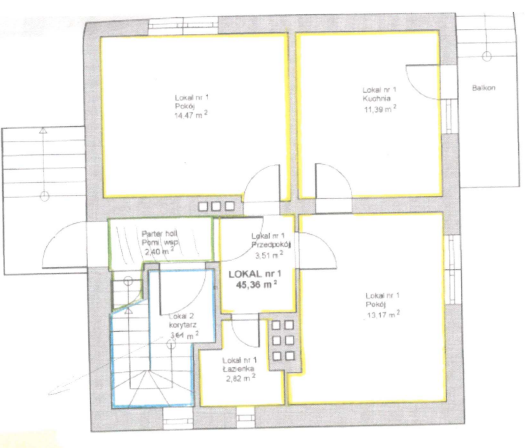
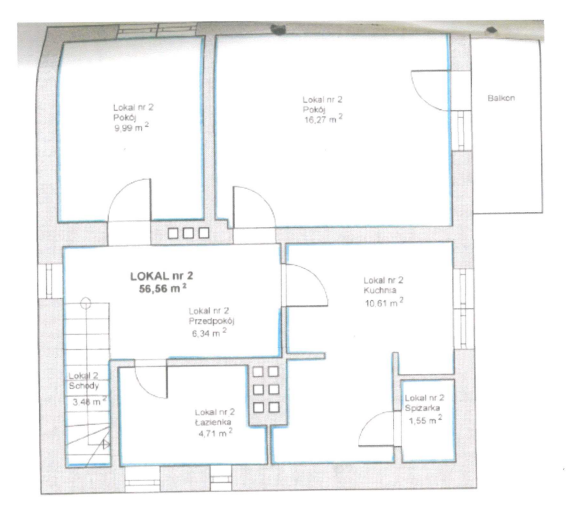
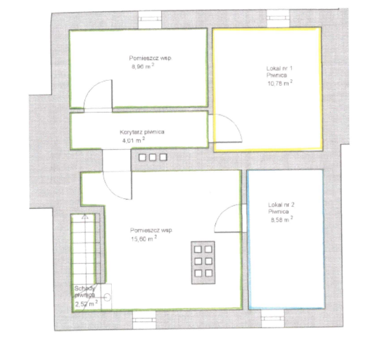
Budynek z lat 50-tych XX wieku, wzniesiony w technologii tradycyjnej – murowany, dwukondygnacyjny, całkowicie podpiwniczony. W budynku znajdują się dwa niewyodrębnione lokale mieszkalne. Budynek stanowi pustostan, wymaga remontu, m. in. wykonania izolacji budynku oraz remontu elewacji połączonej z likwidacją azbestowej okładziny ścian.
Zgodnie z zapisami kartoteki budynków, nieruchomość zabudowana jest budynkiem mieszkalnym jednorodzinnym oraz budynkiem niemieszkalnym.
Nieruchomość położona jest w terenie, dla którego nie obowiązuje miejscowy plan zagospodarowania przestrzennego. Zgodnie ze studium uwarunkowań i kierunków zagospodarowania przestrzennego Bielska-Białej dz. 363/3 położona jest w terenie oznaczonym symbolami: UP – strefa usługowo-wytwórcza oraz KDL – komunikacja drogowa.
Sprzedaż zwolniona jest z podatku VAT na podstawie art. 43 ust.1 pkt 10 ustawy o podatku od towarów i usług.
Działka 363/3 została objęta decyzją Wojewody Śląskiego nr 7/2025/GAZ z 17.04.2025 r. o ustaleniu lokalizacji inwestycji towarzyszącej inwestycji w zakresie terminalu regazyfikacyjnego skroplonego gazu ziemnego w Świnoujściu, dla inwestycji pn. z "Budową gazociągu DN500 MOP 8,4 MPa relacji Skoczów-Komorowice-Oświęcim - Etap IVa." Na nieruchomości oznaczonej jako działka 363/3 obręb Komorowice Śląskie realizowana będzie inwestycja budowy gazociągu DN500, zgodnie z pkt I ppkt 1 – nieruchomość znajduje się w liniach rozgraniczających teren inwestycji.
Przetarg na sprzedaż ww. nieruchomości zostanie ogłoszony po terminie, w którym ww. decyzja stanie się ostateczna.
Operat szacunkowy będzie wymagał aktualizacji.